札幌市営地下鉄東西線「白石」駅徒歩3分
都心アクセスと生活利便性を兼ね備えた好立地に、専有面積106.31㎡の希少な大型 4LDK+2WIC+FCクラス 住戸が登場
![]()
- 一般的なファミリーマンション(70~80㎡台)と比較して、約1.3~1.5倍の広さを確保
- 2WIC:ウォークインクローゼット(Walk-In Closet)が 2か所 ある
- FC:ファミリークローゼット(Family Closet)がある
- リビングの開放感、各居室のゆとり、収納力――そのすべてが“戸建て感覚”の暮らしを実現します。
さらに本物件は【令和7年9月 新規フルリノベーション完成】
キッチン・ユニットバス・洗面台・トイレ・建具・給排水管まで一新され、実質「新築同様」クオリティでご入居いただけます。
![]()
メリット
圧倒的な広さ(106㎡超)
- 札幌市内の中古マンション平均を大きく上回る専有面積
- お子様2~3人のご家庭・在宅ワーク・趣味部屋にも余裕
![]()
![]()
駅徒歩3分の資産価値
- 地下鉄駅近物件は賃貸・売却ともに需要が高く、将来的な資産性◎
- 冬の通勤通学も快適
南西向き6階・陽当たり良好
- 日照時間が長く、暖房効率も高い=光熱費節約
- 明るく開放的な室内空間
リノベーション済み
- 水回り設備・配管まで交換済み
- 初期費用リスクを大幅軽減
トランクルーム無料
- 季節用品・アウトドア用品・タイヤ保管に便利
- 収納力アップ=室内すっきり
![]()
- 地下鉄徒歩5分以内=不動産市場で評価が高い立地条件
- 100㎡超マンションは供給数が少
- 熊谷組施工 × SRC/RC造=高耐久・安心の堅牢構造
![]()
競合物件との明確な差別化ポイント
| 比較項目 |
一般的な周辺物件 |
本物件 |
| 面積 |
70~80㎡ |
106.31㎡ |
| 駅距離(徒歩) |
徒歩7~12分 |
徒歩3分 |
| 築後状態 |
現状渡しが多い |
リノベ済 |
| 収納 |
室内のみ |
トランクルーム無料 |
| 明るさ |
中程度 |
南西向き6階 |
![]()
さらにお得なポイント
- 空室のため即入居可
- ホームステージング実施中(生活イメージしやすい)
- 管理費+修繕積立金も広さの割に良心的
- 商業地域につき買物施設・飲食店・病院が徒歩圏充実
札幌市白石区マンション、白石駅徒歩3分、地下鉄東西線駅近、100㎡超マンション、リノベーション済みマンション、ファミリー向け4LDK、広いマンション、南西向き日当たり良好、トランクルーム付き、熊谷組施工、SRC造、資産価値の高い立地、札幌中古マンション購入、白石区不動産、即入居可能、駅近物件、リフォーム済住宅をお探しの方に特におすすめです。
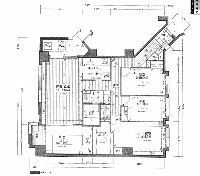
ガーデンヒルズラモード白石ステーション 601号室
- 主要採光 南西向き・陽当たり良好
- ビルドイン食器洗浄機つき
- 専有面積100㎡超
- トランクルーム有(無償)
- 所在地 北海道札幌市白石区南郷通り1丁目北2-10
- 交通 札幌市営地下鉄東西線 白石駅 7番出口徒歩3分
- 構造 SRC・RC造 地下1階付き地上10階建て6階部分
- 総戸数 29戸
- 築年月 平成10年7月
- 土地権利 所有権
- 用途地域 商業地域
- 専有面積 106.31㎡
- バルコニー面積 7.36㎡
- 管理費 12,430円/月
- 修繕積立金 14,880円/月
- 町内会費 200円/月
- カンリ会社 曲堀 幸和産業(株)
- 管理方式 全部委託 巡回
- エレベーター 有
- ペット飼育 不可
- 敷地内駐車場 有 月10000~15000円
- トランクルーム 有り(無料)
- 分譲会社 (株)日動
- 施工会社 (株)熊谷組
- 現況 空室
- 引渡し 即時ホームステージングで演出中
- 取引態様 仲介
新規リノベーション 令和7年9月完了
システムキッチン・ユニットバス・洗面化粧台・トイレ・建具・配管更新・クロス全室貼り替え・フローリング交換・食洗器新規